Home
About Us
Communities
Floor Plans
Features
Listings
Gallery
Testimonials
Contact
Skip to main content
405-570-3034
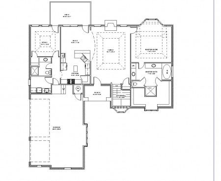
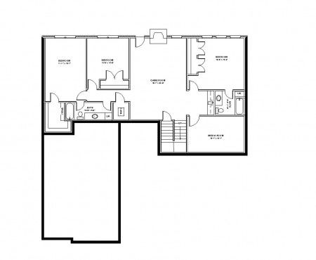
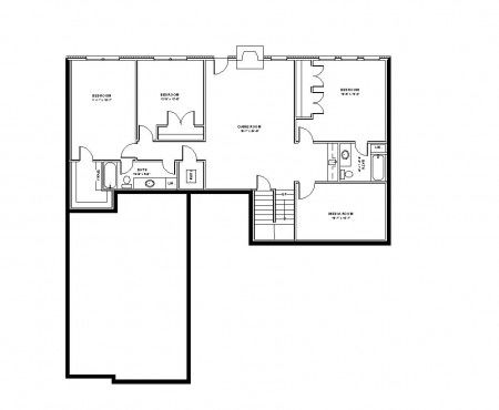
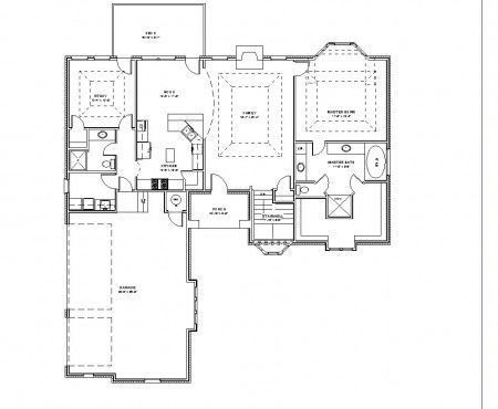
3594
6 Bedrooms
4 Bathrooms
3687 square feet
Enquire About This Plan